Location base vie chantier 16-24 Personnes
La base vie de chantier : une solution modulaire adaptée pour des équipes de 24 personnes
Sur un chantier, le bien-être de vos équipes est essentiel pour garantir leur efficacité et leur sécurité. Chez Allomat, nous proposons des bases vie de chantier modulaires, spécialement conçues pour accueillir de 16 à 24 personnes. Ces structures, robustes et confortables, offrent un espace de vie optimal pour vos collaborateurs, leur permettant de se reposer, de se restaurer, et de se préparer aux différentes tâches du chantier.
Nos bases vie sont :
- rapidement installables,
- modulables selon vos besoins,
- répondent aux exigences les plus strictes en matière de sécurité et d’hygiène.
Grâce à nos solutions, vos équipes bénéficieront d’un cadre de travail adapté, même dans les conditions les plus difficiles.
Un aménagement optimal pour l’efficacité et le bien-être de vos équipes
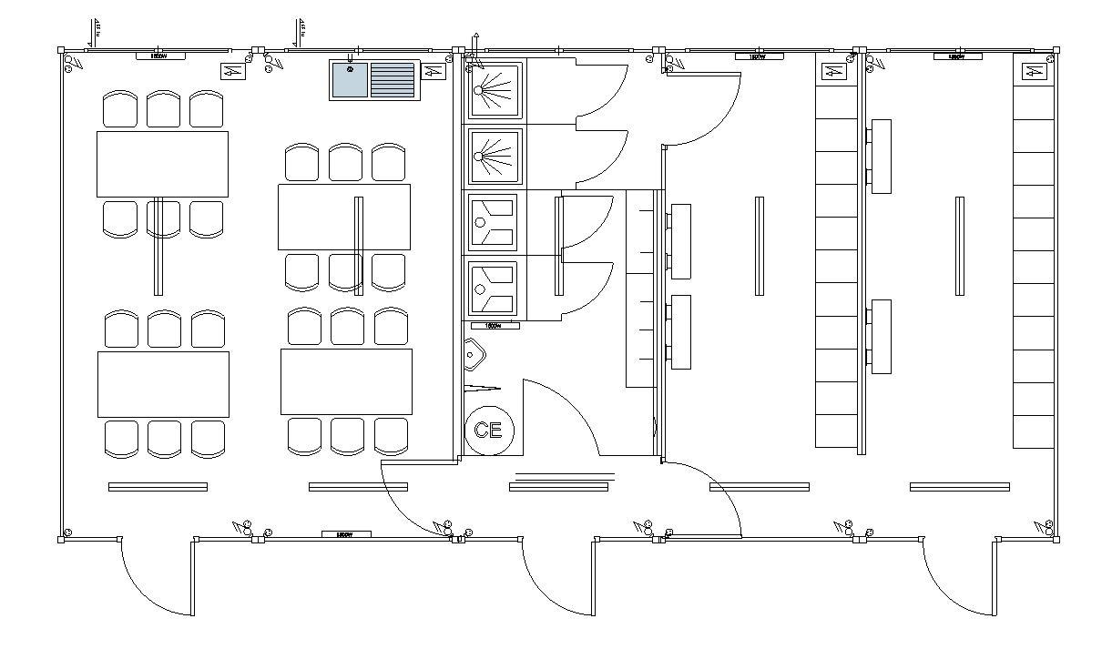
Notre base vie de chantier pour 16 à 24 personnes se distingue par ses caractéristiques techniques et ses équipements de haute qualité :
Réfectoire équipé :
Deux modules complets avec tables, chaises, kitchenette, réfrigérateur et micro-ondes pour assurer le confort des repas.
Sanitaires complets :
Un module avec douches, lavabos, WC et urinoir, adaptés à un effectif de 16 à 24 personnes.
Vestiaires fonctionnels :
Armoires individuelles, bancs et possibilité de vestiaires chauffants ventilés pour un séchage rapide des vêtements.
Caractéristiques techniques
Aménagements intérieurs d’une base vie pour 16 à 24 personnes
La base vie de chantier Allomat a été spécialement conçue et étudiée pour répondre aux besoins de 16 à 24 ouvriers.
Chaque espace a été pensé pour optimiser la place sur le chantier et pour offrir aux travailleurs toutes les commodités nécessaires à leur confort.
- Dans le réfectoire, vous retrouverez un meuble cuisinette avec un frigo et un micro-ondes ainsi que le mobilier nécessaire pour s’asseoir et se restaurer.
- Les sanitaires nécessitent au moins un WC, une douche et une rampe de point d’eau.
- Notre Demi-Domino sanitaire, pratique et compact, répondra parfaitement aux besoins en hygiène sur les chantiers.
- Le vestiaire offre quant à lui des casiers individuels et un espace de séchage.
L’installation est flexible et l’espace peut être modulé selon vos besoins.
Contactez-nous pour vos besoins en bases vie de chantier
Choisir la base vie de chantier pour 24 personnes d’Allomat, c’est offrir à vos équipes des conditions de travail optimales, favorisant leur bien-être et leur productivité. Contactez-nous dès aujourd’hui pour découvrir comment notre solution modulaire peut contribuer à la réussite de vos chantiers.
Base vie 16-24 personnes
-
Installation rapide et modulable
-
Matériel prêt à l’emploi
-
Confort et sécurité pour vos équipes





